Forside
Indretning
Erhvervsindretning
Om- og tilbygning
Info
Kontakt
Referencer
Menu
designhitz
Forside
Indretning
Erhvervsindretning
Om- og tilbygning
Info
Kontakt
Referencer
Bad
Detalje
Køkken
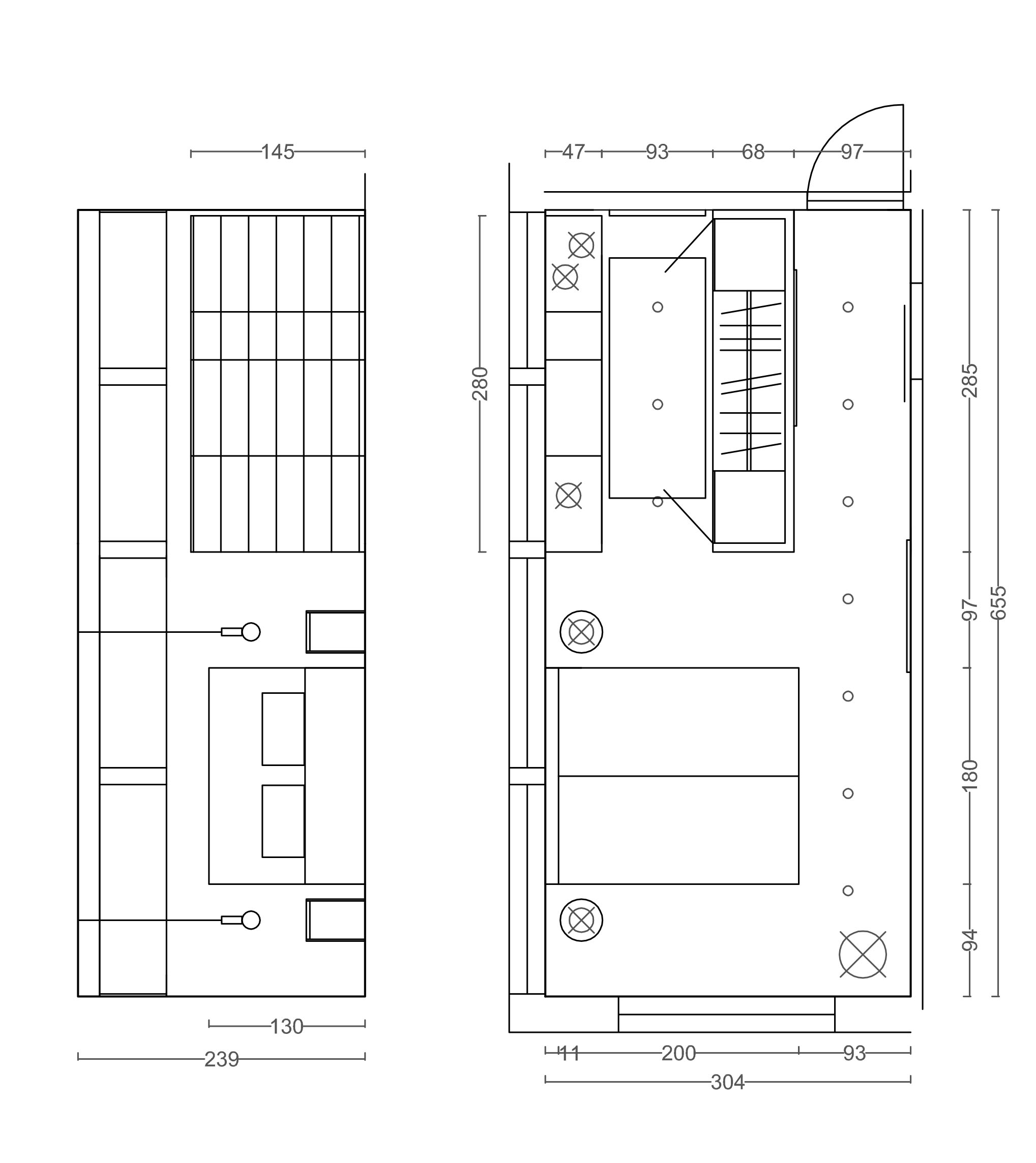
Bad, plan og opstalt
Kløverengen bad
Lampe
Bad
Entre
Bad
materiale
Pirolvænget soveværelse
kontor
Indretning af kontorplads - privat villa
prev
/
next
Back to Indretning
1
Bad
1
Detalje
2
Køkken
1
Bad, plan og opstalt
1
Kløverengen bad
2
Lampe
1
Bad
1
Entre
1
Bad
1
Materiale
1
Pirolvænget soveværelse
1
Kontor